Kamer Mannagras in Rotterdam€ 500,00
Kenmerken
Aanbieder
Via bemiddelaar
Plaatsnaam
Zaamslag
Aantal kamers
4
Woonoppervlakte
20
Regio
Soort Woning
Beschrijving
Via de hal met tegelvloer bereik je de kelderkast, meterkast, het toilet en de trap naar de verdieping. De ruime woonkamer (ca. 9,00 x 4,00 m) is voorzien van een tegelvloer, schouw met gasaansluiting en rolluiken.
De dichte keuken (ca. 6,90 x 2,50 m) beschikt over diverse inbouwapparatuur: koel-/vriescombinatie, oven, elektrische kookplaat, afzuigkap en close-in boiler.
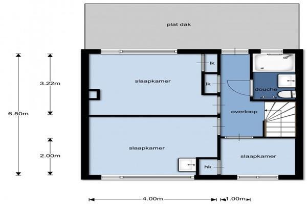
Hier bevinden zich drie slaapkamers met houten vloeren, deels voorzien van kunststof kozijnen en rolluiken:
Slaapkamer 1: ca. 3,28 x 4,00 m
Slaapkamer 2: ca. 2,00 x 2,50 m
Slaapkamer 3: ca. 3,22 x 4,00 m met vaste kast
De badkamer (ca. 3,00 x 1,50 m) is uitgerust met een douchecabine, wastafelmeubel met spiegelkast en sanibroyeur.
Via de overloop heb je toegang tot het dakterras aan de achterzijde.
Praktische bergzolder met combiketel (Intergas, 1995).
Een betonnen binnenplaats met stenen berging (ca. 2,50 x 3,00 m), voorzien van elektra, wasmachineaansluiting.
Woning rondom voorzien van rolluiken (m.u.v. keuken), kunststof kozijnen (2011)
De dichte keuken (ca. 6,90 x 2,50 m) beschikt over diverse inbouwapparatuur: koel-/vriescombinatie, oven, elektrische kookplaat, afzuigkap en close-in boiler.
Hier bevinden zich drie slaapkamers met houten vloeren, deels voorzien van kunststof kozijnen en rolluiken:
Slaapkamer 1: ca. 3,28 x 4,00 m
Slaapkamer 2: ca. 2,00 x 2,50 m
Slaapkamer 3: ca. 3,22 x 4,00 m met vaste kast
De badkamer (ca. 3,00 x 1,50 m) is uitgerust met een douchecabine, wastafelmeubel met spiegelkast en sanibroyeur.
Via de overloop heb je toegang tot het dakterras aan de achterzijde.
Praktische bergzolder met combiketel (Intergas, 1995).
Een betonnen binnenplaats met stenen berging (ca. 2,50 x 3,00 m), voorzien van elektra, wasmachineaansluiting.
Woning rondom voorzien van rolluiken (m.u.v. keuken), kunststof kozijnen (2011)
...
...
...
...
...
...
...
...
...
...
...
...
Bezorgt in heel Nederland
8x bekeken
0x bewaard
Sinds 4 okt '25
Advertentienummer: a1518752770
Populaire zoektermen
Huizen te huurboerderij te huurhuur meppelsneek te huurstudio te huurstudio te huur utrechtte huur dokkumhuur winschotente huur veendamhoorn te huurte huur coevordente huur waalwijkalmelo te huurte huur hoogezandauto wasbox in Onderhoudsmiddelenbape in Horloges | Herenwendy van dijk tas in Tassen | Schoudertassenikarus in Modelauto's | 1:87ford in Modelauto's | 1:87motorbroek 152 in Kleding | Motorkledingring bel in Deurbellendouwe egberts theeglazen in Keuken | Serviesschuitema art deco in Kasten | Vitrinekastenbmw 4x4 in BMW