Kenmerken
Aanbieder
Via bemiddelaar
Plaatsnaam
Amsterdam
Aantal kamers
5
Woonoppervlakte
50
Regio
Soort Woning
Beschrijving
GEEN WONINGDELERS TOEGESTAAN, GEEN STUDENTEN
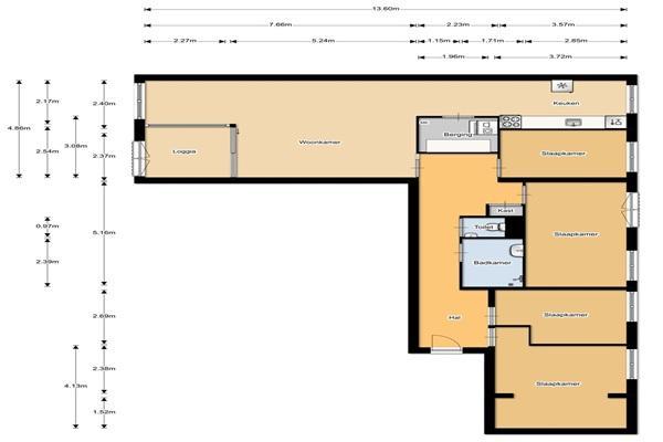
INDELING:
Nette gemeenschappelijke entree met video-intercom installatie en postbussen. Middels het gemeenschappelijke trappenhuis of de lift bereikt u de woning, welke is gelegen op de derde verdieping.
Vanuit de centraal gesitueerde hal zijn alle vertrekken in het appartement bereikbaar. De ruime en lichte woonkamer biedt toegang tot de zonnige loggia en biedt u een fraai uitzicht over de nabij gelegen groenstrook en de winkels aan de Bijlmerdreef.
De woonkamer grenst aan de moderne keuken gelegen aan de achterzijde. Naast de keuken is een inpandige berging voor de wasmachine- en de drogeropstelling. Er is hier ook nog genoeg ruimte voor een grote stellingkast en een vriezer.
Voorts treft u aan de voorzijde van het appartement een viertal goed bemeten slaapkamers. De slaapkamers hebben voldoende ruimte voor een flinke kledingkast en een tweepersoons bed.
De badkamer is voorzien van een inloopdouche, wastafel en radiator. Separaat treft u het toilet met fonteintje.
INDELING:
Nette gemeenschappelijke entree met video-intercom installatie en postbussen. Middels het gemeenschappelijke trappenhuis of de lift bereikt u de woning, welke is gelegen op de derde verdieping.
Vanuit de centraal gesitueerde hal zijn alle vertrekken in het appartement bereikbaar. De ruime en lichte woonkamer biedt toegang tot de zonnige loggia en biedt u een fraai uitzicht over de nabij gelegen groenstrook en de winkels aan de Bijlmerdreef.
De woonkamer grenst aan de moderne keuken gelegen aan de achterzijde. Naast de keuken is een inpandige berging voor de wasmachine- en de drogeropstelling. Er is hier ook nog genoeg ruimte voor een grote stellingkast en een vriezer.
Voorts treft u aan de voorzijde van het appartement een viertal goed bemeten slaapkamers. De slaapkamers hebben voldoende ruimte voor een flinke kledingkast en een tweepersoons bed.
De badkamer is voorzien van een inloopdouche, wastafel en radiator. Separaat treft u het toilet met fonteintje.
...
...
...
...
...
...
...
...
...
...
...
...
Bezorgt in heel Nederland
0x bekeken
0x bewaard
Sinds 19 nov '25
Advertentienummer: a1520247524
Populaire zoektermen
Huizen te huurboerderij te huurhuur meppelsneek te huurstudio te huurstudio te huur utrechtte huur dokkumhuur winschotente huur veendamhoorn te huurte huur coevordente huur waalwijkalmelo te huurte huur hoogezandzandbak schildpad in Speelgoed | Buiten | Zandbakkendingo hond in Hondenriemendyson airwrap föhn in Uiterlijk | Haarverzorgingopklapbed kast in Slaapkamer | Beddenvintage cassettedeck in Cassettedecksbestekset delig sola in Keuken | Bestekbushnell engage 10x42 in Optische apparatuur | Verrekijkersmary jane dr martens in Schoenenpopal prestige in Elektrische fietsengolf 2 syncro in Volkswagen