Kenmerken
Aanbieder
Via bemiddelaar
Plaatsnaam
Rotterdam
Aantal kamers
3
Woonoppervlakte
50
Regio
Soort Woning
Beschrijving
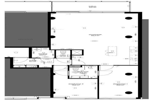
Indeling
Gesloten entree met toegang tot het bellentableau, de brievenbussen en de liften. Via de trapopgang of liften bereikt u de bovengelegen verdiepingen.
Vanuit de hal is er toegang tot alle vertrekken.
In de gang bevindt zich een klein berghok waar wasmachine uitsluiting zit, daarnaast bevindt zich het toilet met fonteintje.
De open keuken is voorzien van een vaatwasser, oven, inductieplaat en koelkast.
De woonkamer is ruim opgezet en geniet van veel lichtinval dankzij de grote raampartijen en het brede balkon aan de achterzijde. Via schuifdeuren is het balkon te betreden.
Aan de voorzijde van de woning liggen twee slaapkamers.
De badkamer is voorzien van een wastafel met wastafelmeubel en douche. De badkamer is vanuit allebei de slaapkamers toegankelijk.
De woning is niet geschikt voor woningdelers
Gesloten entree met toegang tot het bellentableau, de brievenbussen en de liften. Via de trapopgang of liften bereikt u de bovengelegen verdiepingen.
Vanuit de hal is er toegang tot alle vertrekken.
In de gang bevindt zich een klein berghok waar wasmachine uitsluiting zit, daarnaast bevindt zich het toilet met fonteintje.
De open keuken is voorzien van een vaatwasser, oven, inductieplaat en koelkast.
De woonkamer is ruim opgezet en geniet van veel lichtinval dankzij de grote raampartijen en het brede balkon aan de achterzijde. Via schuifdeuren is het balkon te betreden.
Aan de voorzijde van de woning liggen twee slaapkamers.
De badkamer is voorzien van een wastafel met wastafelmeubel en douche. De badkamer is vanuit allebei de slaapkamers toegankelijk.
De woning is niet geschikt voor woningdelers
...
...
...
...
...
...
...
...
...
...
...
...
Bezorgt in heel Nederland
0x bekeken
0x bewaard
Sinds 7 jan '26
Advertentienummer: a1521594628
Populaire zoektermen
Huizen te huurboerderij te huurhuur meppelsneek te huurstudio te huurstudio te huur utrechtte huur dokkumhuur winschotente huur veendamhoorn te huurte huur coevordente huur waalwijkalmelo te huurte huur hoogezandfluistermotor set in Bootonderdelenvw paravan in Carrosserie en Plaatwerkbavaria schwarzenhammer in Antiek | Servies losdelft huurkofferbaktas in Auto-accessoiresdriepuntssluiting achterdeur in Deuren en Horrenrots lamp in Lampen | Tafellampenromeinse beelden in Kunst | Beelden en Houtsnijwerkenkasteel kroonluchter in Lampen | Kroonluchtersjongens pyjama 92/98 in Carnavalskleding en Verkleedspullen