Kenmerken
Aanbieder
Via bemiddelaar
Plaatsnaam
Weert
Aantal kamers
3
Woonoppervlakte
50
Regio
Soort Woning
Beschrijving
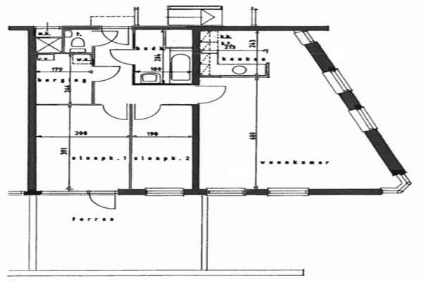
Dit ruime appartement is gelegen op de tweede verdieping van het complex en kent een oppervlakte van circa 75m². Het appartement voorziet in een ruime woonkamer (37 m²), met aangrenzend gelegen de keuken in rechte opstelling. Het appartement met de loggia (8 m²) gelegen richting de Rabobank.
Het appartement is voorzien van twee slaapkamers met respectievelijke oppervlakten van ca. 12m² en 6,5m². De badkamer is gelegen direct aan de hal en is voorzien van ligbad en douche. Het toilet met fonteintje is separaat gelegen. Tot slot heeft u de beschikking over een ruime inpandige berging. Deze ruimte doet prima functie als provisie- c.q. bergruimte. In de kelder van het complex is eveneens een berging aanwezig voor bijvoorbeeld uw fiets.
Het appartement is voorzien van twee slaapkamers met respectievelijke oppervlakten van ca. 12m² en 6,5m². De badkamer is gelegen direct aan de hal en is voorzien van ligbad en douche. Het toilet met fonteintje is separaat gelegen. Tot slot heeft u de beschikking over een ruime inpandige berging. Deze ruimte doet prima functie als provisie- c.q. bergruimte. In de kelder van het complex is eveneens een berging aanwezig voor bijvoorbeeld uw fiets.
...
...
...
...
...
...
...
...
...
...
...
...
Bezorgt in heel Nederland
17x bekeken
0x bewaard
Sinds 16 feb '26
Advertentienummer: a1522837332
Populaire zoektermen
Huizen te huurboerderij te huurhuur meppelsneek te huurstudio te huurstudio te huur utrechtte huur dokkumhuur winschotente huur veendamhoorn te huurte huur coevordente huur waalwijkalmelo te huurte huur hoogezandwesterhaar-vriezenveensewijk in Volkswagenopel corsa 1.0 in Opeltechnics sl qd33 in Platenspelersreu ter dekking in Honden | Dekreuenk3 en het ijsprinsesje in Dvd's | Kinderen en Jeugddriade in Tuinstoelenpiaggio stickers in Scooters | Piaggioruurlo in Stoelenlego 6492 in Speelgoed | Duplo en Legorek in Knaagdieren en Konijnen | Hokken en Kooien