Kenmerken
Aanbieder
Via bemiddelaar
Plaatsnaam
Ede
Aantal kamers
3
Woonoppervlakte
50
Regio
Soort Woning
Beschrijving
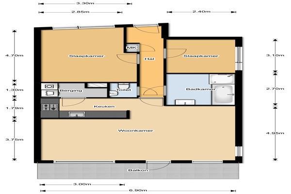
Indeling:
Entree met garderobe, meterkast en toilet.
Vanuit hier toegang tot alle vertrekken in de woning.
De woonkamer is erg licht door de grote raampartijen aan zowel de zijkant als de achterzijde. Via openslaande deur is het ruime balkon te bereiken.
Op de vloer ligt een laminaatvloer met V-groef.
Er is een halfopen hoek opgestelde keuken met veel kastruimte en apparatuur (koelkast, vriezer, combimagnetron, vaatwasser, keramische kookplaat en afzuigkap).
Er is een berging waar zich de aansluiting voor wasmachine en droger en de Cv-ketel zich bevinden.
De beide slaapkamer zijn gesitueerd aan de voorzijde van het appartement.
De badkamer heeft een douchecabine met thermostaatkraan, ligbad en wastafel. De wanden zijn tot aan het plafond betegeld.
Het balkon ligt op het zuiden. Het balkon strekt zich uit over de gehele breedte van het appartement zodat de hele dag van de zon kan worden genoten.
In de onderbouw bevindt zich de berging en de parkeerkelder.
Entree met garderobe, meterkast en toilet.
Vanuit hier toegang tot alle vertrekken in de woning.
De woonkamer is erg licht door de grote raampartijen aan zowel de zijkant als de achterzijde. Via openslaande deur is het ruime balkon te bereiken.
Op de vloer ligt een laminaatvloer met V-groef.
Er is een halfopen hoek opgestelde keuken met veel kastruimte en apparatuur (koelkast, vriezer, combimagnetron, vaatwasser, keramische kookplaat en afzuigkap).
Er is een berging waar zich de aansluiting voor wasmachine en droger en de Cv-ketel zich bevinden.
De beide slaapkamer zijn gesitueerd aan de voorzijde van het appartement.
De badkamer heeft een douchecabine met thermostaatkraan, ligbad en wastafel. De wanden zijn tot aan het plafond betegeld.
Het balkon ligt op het zuiden. Het balkon strekt zich uit over de gehele breedte van het appartement zodat de hele dag van de zon kan worden genoten.
In de onderbouw bevindt zich de berging en de parkeerkelder.
...
...
...
...
...
...
...
...
...
...
...
...
Bezorgt in heel Nederland
6x bekeken
0x bewaard
Sinds 20 mar '26
Advertentienummer: a1523893012
Populaire zoektermen
Huizen te huurboerderij te huuredehuur meppelsneek te huurstudio te huurstudio te huur utrechtte huur dokkumhuur winschotente huur veendamhoorn te huurte huur coevordente huur waalwijkalmelo te huuropblaasbare zitverhoger in Autostoeltjeslimonade dispenser in Keuken | Keukenbenodigdhedenknaus sudwind 1994 in Caravansplaymobil losse dieren in Speelgoed | Playmobilvruchtbaarheidsbeeldje in Kunst | Niet-Westerse kunstdvm60 in Videocamera's Digitaalhomas jodelbaan in Speelgoed | Houten speelgoedaudi horloge in Horloges | Herensuzumar 310 in Rubberbotensleeper car in Taal | Engels