Kenmerken
Beschrijving
Twee balkons
Recent gerenoveerd appartement met 3 slaapkamers, 2 balkons en berging in de
Staalmanpleinbuurt!
Dit aantrekkelijke complex aan het Staalmanplein is recent flink gerenoveerd waarbij de
woningen overgestapt zijn naar stadsverwarming (gasloos) ondersteund door nieuwe
zonnepanelen. De woningen zijn bestemd voor het middensegment en er wordt voorrang
gegeven aan mensen die een sociale huurwoning achterlaten.
Het appartementencomplex is gelegen in het stadsdeel Slotervaart. De woningen liggen op
loopafstand van de tram en metrohaltes Heemstedestraat en Henk Sneevlietweg. Tram 2 brengt
je vanaf dit punt in nog geen 20 minuten naar het Leidseplein. Het gezellige Hoofddorpplein ligt
op 5 minuten fietsafstand en het Vondelpark op nog geen 10 minuten fietsen. Ook met de auto
zijn de appartementen te bereiken. In de nabijheid van de appartementen liggen diverse
snelwegen zoals de A4, A10 en de A9. Door deze gunstige locatie is bijvoorbeeld luchthaven
Schiphol met 10 minuten bereikbaar per auto en in 15 minuten per openbaar vervoer.
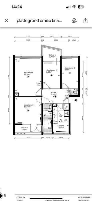
Indeling:
Entree via gemeenschappelijk trappenhuis. De woning is voorzien van een hal, separaat toilet, en
een ruime en lichte woonkamer. 3 ruime slaapkamers met toegang tot balkon(s). De
appartementen hebben ruime keukens voorzien van standaard keukenblok met 4 onderkastjes
en 4 bovenkastjes. Badkamer voorzien van douche, wastafel en wasmachine aansluiting.
Bijzonderheden:
• Middensegment woningen, maximaal inkomen van € 62.250,-;
• Geheel gerenoveerd complex;
• 3 ruime slaapkamers;
• 75 m2 gebruiksoppervlakte;
• 2 Balkons;
• Gasloos;
• Zonnepanelen;
• Energielabel C;
• Goede bereikbaarheid zowel openbaar vervoer als eigen vervoer;
• Het betreft een kale huurwoning, huurder dient zelf zorg te dragen voor vloer- en
wandafwerking;
- Vloer aanwezig is de woning;
• Huurprijs is exclusief servicekosten:
- Servicekosten: € 36,47 per maand;
Belangrijk!
Deze woning wordt momenteel aangeboden als ruilobject bij Woningruil24, en is bedoeld voor diegene die op zijn beurt ook een woning heeft om te ruilen.
Het is kosteloos om een account bij ons te starten om zo je specifieke droomruil, tussen honderen woningen, bij ons te vinden.
Dit en meer appartement uitwisselingsadvertenties zijn te vinden op woningruil24.nl.
Recent gerenoveerd appartement met 3 slaapkamers, 2 balkons en berging in de
Staalmanpleinbuurt!
Dit aantrekkelijke complex aan het Staalmanplein is recent flink gerenoveerd waarbij de
woningen overgestapt zijn naar stadsverwarming (gasloos) ondersteund door nieuwe
zonnepanelen. De woningen zijn bestemd voor het middensegment en er wordt voorrang
gegeven aan mensen die een sociale huurwoning achterlaten.
Het appartementencomplex is gelegen in het stadsdeel Slotervaart. De woningen liggen op
loopafstand van de tram en metrohaltes Heemstedestraat en Henk Sneevlietweg. Tram 2 brengt
je vanaf dit punt in nog geen 20 minuten naar het Leidseplein. Het gezellige Hoofddorpplein ligt
op 5 minuten fietsafstand en het Vondelpark op nog geen 10 minuten fietsen. Ook met de auto
zijn de appartementen te bereiken. In de nabijheid van de appartementen liggen diverse
snelwegen zoals de A4, A10 en de A9. Door deze gunstige locatie is bijvoorbeeld luchthaven
Schiphol met 10 minuten bereikbaar per auto en in 15 minuten per openbaar vervoer.
Indeling:
Entree via gemeenschappelijk trappenhuis. De woning is voorzien van een hal, separaat toilet, en
een ruime en lichte woonkamer. 3 ruime slaapkamers met toegang tot balkon(s). De
appartementen hebben ruime keukens voorzien van standaard keukenblok met 4 onderkastjes
en 4 bovenkastjes. Badkamer voorzien van douche, wastafel en wasmachine aansluiting.
Bijzonderheden:
• Middensegment woningen, maximaal inkomen van € 62.250,-;
• Geheel gerenoveerd complex;
• 3 ruime slaapkamers;
• 75 m2 gebruiksoppervlakte;
• 2 Balkons;
• Gasloos;
• Zonnepanelen;
• Energielabel C;
• Goede bereikbaarheid zowel openbaar vervoer als eigen vervoer;
• Het betreft een kale huurwoning, huurder dient zelf zorg te dragen voor vloer- en
wandafwerking;
- Vloer aanwezig is de woning;
• Huurprijs is exclusief servicekosten:
- Servicekosten: € 36,47 per maand;
Belangrijk!
Deze woning wordt momenteel aangeboden als ruilobject bij Woningruil24, en is bedoeld voor diegene die op zijn beurt ook een woning heeft om te ruilen.
Het is kosteloos om een account bij ons te starten om zo je specifieke droomruil, tussen honderen woningen, bij ons te vinden.
Dit en meer appartement uitwisselingsadvertenties zijn te vinden op woningruil24.nl.
Website
klik hier om te bekijken...
...
...
...
...
...
...
...
...
...
...
...
Bezorgt in heel Nederland
1x bekeken
0x bewaard
Sinds 23 sep '25
Advertentienummer: a1518293814
Populaire zoektermen
Woningruilwoningruil amsterdam amsterdamwoningruil in utrechtwoningruil in rotterdamwoningruil almerewoningruil den haagwoningruil groningenwoningruil arnhemwoningruil alkmaarwoningruil nijmegenwoningruilwoningruil eindhovenwoningruil hoofddorpwoningruil in rotterdamw124 mercedes in Oldtimersbmw f30 remmen in Remmen en Aandrijvingzenoah pum in Modelauto's | 1:5 tot 1:12kraantje pappie in Cd's | Hiphop en Rapoud kastje in Kasten | Wandmeubelsbaby sneek in Babykleding | Baby-kledingpakkettenscheveningen in Vacatures | HR en Arbeidsbemiddelingvoile blanche 39 in Schoenenfrees gebruikt in Gereedschap | Freesmachinespensioen stalling in Stalling en Weidegang