Kenmerken
Beschrijving
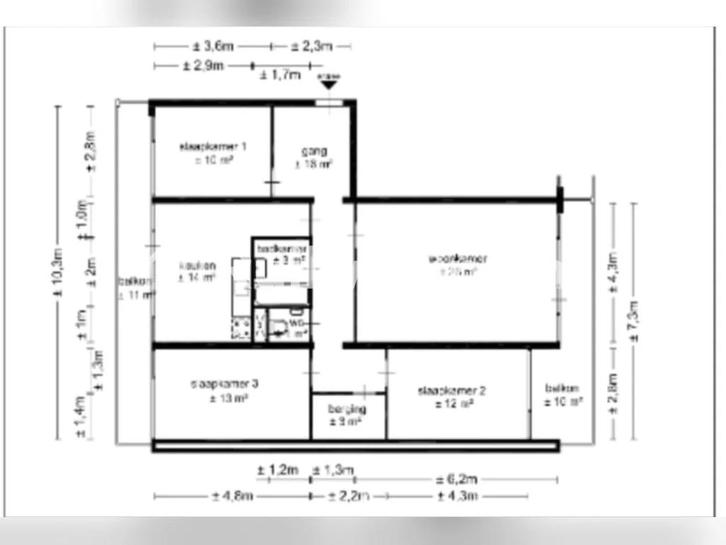
Welkom in onze ruime flat in het gezellige Geldrop! Met 5 kamers en 125 m² is er genoeg ruimte om van te genieten. We zoeken een plekje rond Veldhoven of Best, waar we met veel plezier heen willen verhuizen. Onze flat in Geldrop heeft een huurprijs van slechts 680 euro, wat het een geweldige deal maakt. We zijn op zoek naar iets met minimaal 2 kamers en 70 m², en een maximale huur van 1300 euro. We kijken ernaar uit om met jou van woning te wisselen en samen iets leuks te regelen! Meer details over de exacte locatie van jouw huis zijn welkom.
Belangrijk - dit is een woningruil
Deze woning wordt via Ruilwoning.nl aangeboden als ruilobject. Reageren is daarom alleen zinvol als je zelf ook een woning hebt die je wilt ruilen.
Zo werkt woningruil:
1. Je geeft aan waar je woont en wat je zoekt.
2. Wij tonen je passende ruilpartners (jouw matches).
3. Jullie chatten direct met elkaar en regelen samen de ruil.
Het hele proces is eenvoudig, overzichtelijk en veilig. Jij bepaalt zelf met wie je contact opneemt en kunt rustig kennismaken voordat jullie een ruil afspreken.
Actie: Met de kortingscode WELCOME-HOME krijg je nu een PRO-lidmaatschap 100% gratis. Deze actie is tijdelijk en helpt om de Ruilwoning-community sneller te laten groeien, zodat er meer en betere matches ontstaan. Ideaal om Ruilwoning.nl vrijblijvend uit te proberen en geschikte ruilpartners te vinden.
Op Ruilwoning.nl vind je nog veel meer woningruiladvertenties en vergroot je aanzienlijk je kans op een succesvolle woningruil.
Deze advertentie is geplaatst door een gebruiker. Ruilwoning.nl biedt alleen het platform aan en is niet de aanbieder van de woning. Meld mogelijke juridische overtredingen (bijv. met foto's) hier: https://www.ruilwoning.nl/reporting-process-for-illegal-content
Belangrijk - dit is een woningruil
Deze woning wordt via Ruilwoning.nl aangeboden als ruilobject. Reageren is daarom alleen zinvol als je zelf ook een woning hebt die je wilt ruilen.
Zo werkt woningruil:
1. Je geeft aan waar je woont en wat je zoekt.
2. Wij tonen je passende ruilpartners (jouw matches).
3. Jullie chatten direct met elkaar en regelen samen de ruil.
Het hele proces is eenvoudig, overzichtelijk en veilig. Jij bepaalt zelf met wie je contact opneemt en kunt rustig kennismaken voordat jullie een ruil afspreken.
Actie: Met de kortingscode WELCOME-HOME krijg je nu een PRO-lidmaatschap 100% gratis. Deze actie is tijdelijk en helpt om de Ruilwoning-community sneller te laten groeien, zodat er meer en betere matches ontstaan. Ideaal om Ruilwoning.nl vrijblijvend uit te proberen en geschikte ruilpartners te vinden.
Op Ruilwoning.nl vind je nog veel meer woningruiladvertenties en vergroot je aanzienlijk je kans op een succesvolle woningruil.
Deze advertentie is geplaatst door een gebruiker. Ruilwoning.nl biedt alleen het platform aan en is niet de aanbieder van de woning. Meld mogelijke juridische overtredingen (bijv. met foto's) hier: https://www.ruilwoning.nl/reporting-process-for-illegal-content
...
...
...
...
...
...
...
...
...
...
...
...
Geldrop
23x bekeken
0x bewaard
Sinds 19 feb '26
Advertentienummer: a1522946013
Populaire zoektermen
Woningruilwoningruil amsterdam amsterdamwoningruil in utrechtwoningruil in rotterdamwoningruil almerewoningruil den haagwoningruil groningenwoningruil arnhemwoningruil alkmaarwoningruil nijmegenwoningruilwoningruil eindhovenwoningruil hoofddorpwoningruil in rotterdammodelauto vw camper in Modelauto's | Overige schalennatascha in Jurkenpoppenhuis douche in Speelgoed | Poppenhuizenmaple 42 in Schaatsenvintage bierkrat in Biermerkenpearl s buck oostenwind westenwind in Romansbose 301 series iii in Luidsprekersbmw cabrio in Interieur en Bekledingbmw 1 serie in Autospeakersboot verven in Modelbouw | Boten en Schepen