Kenmerken
Woonoppervlakte
50 m² of meer
Regio
Beschrijving
Indeling
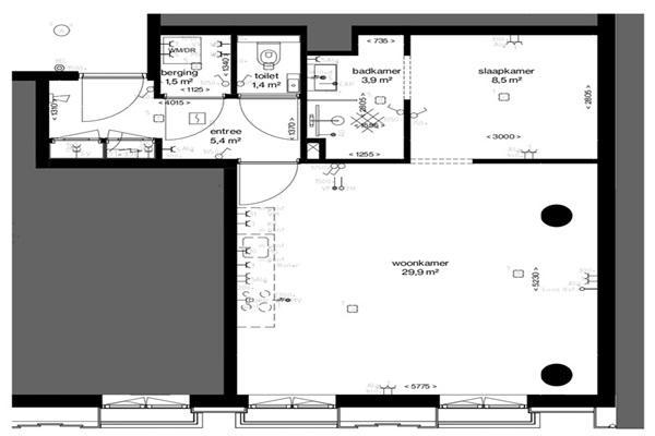
Gesloten entree met toegang tot het bellentableau, de brievenbussen en de liften. Via de trapopgang of liften bereikt u de bovengelegen verdiepingen.
Vanuit de hal is er toegang tot alle vertrekken.
In de gang bevindt zich een klein berghok waar wasmachine uitsluiting zit, daarnaast bevindt zich het toilet met fonteintje.
De open keuken is voorzien van een vaatwasser, oven, inductieplaat en koelkast.
De woonkamer is ruim opgezet en geniet van veel lichtinval dankzij de grote raampartijen en het Franse balkon aan de voorzijde.
Aansluitend ligt de slaapkamer, die in open verbinding staat met de woonkamer via een open doorgang.
De badkamer is voorzien van een wastafel met wastafelmeubel en douche.
De woning is niet geschikt voor woningdelers
Gesloten entree met toegang tot het bellentableau, de brievenbussen en de liften. Via de trapopgang of liften bereikt u de bovengelegen verdiepingen.
Vanuit de hal is er toegang tot alle vertrekken.
In de gang bevindt zich een klein berghok waar wasmachine uitsluiting zit, daarnaast bevindt zich het toilet met fonteintje.
De open keuken is voorzien van een vaatwasser, oven, inductieplaat en koelkast.
De woonkamer is ruim opgezet en geniet van veel lichtinval dankzij de grote raampartijen en het Franse balkon aan de voorzijde.
Aansluitend ligt de slaapkamer, die in open verbinding staat met de woonkamer via een open doorgang.
De badkamer is voorzien van een wastafel met wastafelmeubel en douche.
De woning is niet geschikt voor woningdelers
...
...
...
...
...
...
...
...
...
...
...
...
Bezorgt in heel Nederland
3x bekeken
0x bewaard
Sinds 7 jan '26
Advertentienummer: a1521594624
Populaire zoektermen
Kamers te huuramsterdam studiostudio te huur den haagstudio te huur rotterdamsalon ruimte te huurstudio tilburgstudio te huur nijmegenkamers te huur arnhemte huur kranenburgstudio te huur amersfoortstudio te huur haarlemkamer te huur deventerkamer te huur zaandamsalon te huur amsterdamtante paula in Stepspop mart in Poppetjes en Figuurtjesrenault megane gt line in Renaultholzmann in Gereedschap | Zaagmachinescutie in Speelgoed | My Little Ponytamiya volvo in Modelbouw | Radiografisch | Auto'spluche tafelkleed in Antiek | Kleden en Textieljolly opbergkast in Kasten | Wandmeubelsslaapzak gratis in Dekens, Slaapzakjes en Inbakerproductenglazen stolp in Keuken | Servies