Kenmerken
Beschrijving
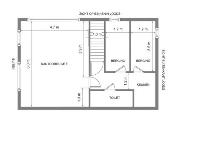
Per direct te huur in Maastricht aan de Sleperweg 28 in de beatrixhaven : 48 m2 kantoorruimte gelegen op de 1e etage.
Een mooie open bureau ruimte
2 bergingen
Kitchenette
Toilet met douche
Op de begane grond is een opslagplaats van bouwmaterialen met kantoor. Het eventueel huren van een extra ruimte in de opslagplaats is bespreekbaar.
Buiten op het privé terrein zijn er 2 parkeerplaatsen beschikbaar
Het kantoor is gerenoveerd en voorzien energiezuinige verlichting, airco en een laminaat vloer.
Naast het pand is op eigen terrein voldoende gratis parkeergelegenheid.
De ruimtes zijn ideaal voor (startende)
administratie/verzekeringsbedrijven, makelaars,
webdesign bedrijven, webshops en trainers/coaches.
Ideale locatie op maar 10 minuten van de A2
De huurprijs is 525 euro excl. btw per maand en excl. energie en service kosten.
Een mooie open bureau ruimte
2 bergingen
Kitchenette
Toilet met douche
Op de begane grond is een opslagplaats van bouwmaterialen met kantoor. Het eventueel huren van een extra ruimte in de opslagplaats is bespreekbaar.
Buiten op het privé terrein zijn er 2 parkeerplaatsen beschikbaar
Het kantoor is gerenoveerd en voorzien energiezuinige verlichting, airco en een laminaat vloer.
Naast het pand is op eigen terrein voldoende gratis parkeergelegenheid.
De ruimtes zijn ideaal voor (startende)
administratie/verzekeringsbedrijven, makelaars,
webdesign bedrijven, webshops en trainers/coaches.
Ideale locatie op maar 10 minuten van de A2
De huurprijs is 525 euro excl. btw per maand en excl. energie en service kosten.
...
...
...
...
...
...
...
...
...
...
...
...
Maastricht
494x bekeken
5x bewaard
Sinds 30 sep '25
Advertentienummer: m2317076781
Populaire zoektermen
loods te huurschuur te huurbedrijfsruimte te huur rotterdambedrijfsruimte te huurbuitenterrein te huurloods te huurbedrijfsruimte te huur utrechtatelier ruimte te huurshowroom te huurbedrijfsruimte huur groningengarage te huurbedrijfsruimte te huur bredabedrijfsruimte te huur eindhovenwinkelruimte te huurbeo vogel in Vogels | Overige Vogelsbotter urk in Ansichtkaarten | Nederlandgrafix in Denksport en Puzzelstoyota landcruiser diesel in Toyotaplaymobil 4229 in Speelgoed | Playmobilgorinchem in Antiek | Klokkenstrikslip in Babykleding | Overigecrivit helm in Skiën en Langlaufendaar werd wat groots verricht in Antiek | Boeken en Bijbelsvakjes kist in Woonaccessoires | Kisten